project overview
The primary design approach was to take advantage of the "bones of the house" by exposing the existing brick walls and ceiling beams on the main floor. New interventions were designed to highlight this existing archaeology.
The vision for the project was to marry the client's two passions—modern simplicity and an appreciation for the rustic qualities of the original house. This led to the invention of the term 'm‑ustic.' Modern elements were treated as black, abstract insertions while the rustic qualities inherent in the house were restored and enhanced.
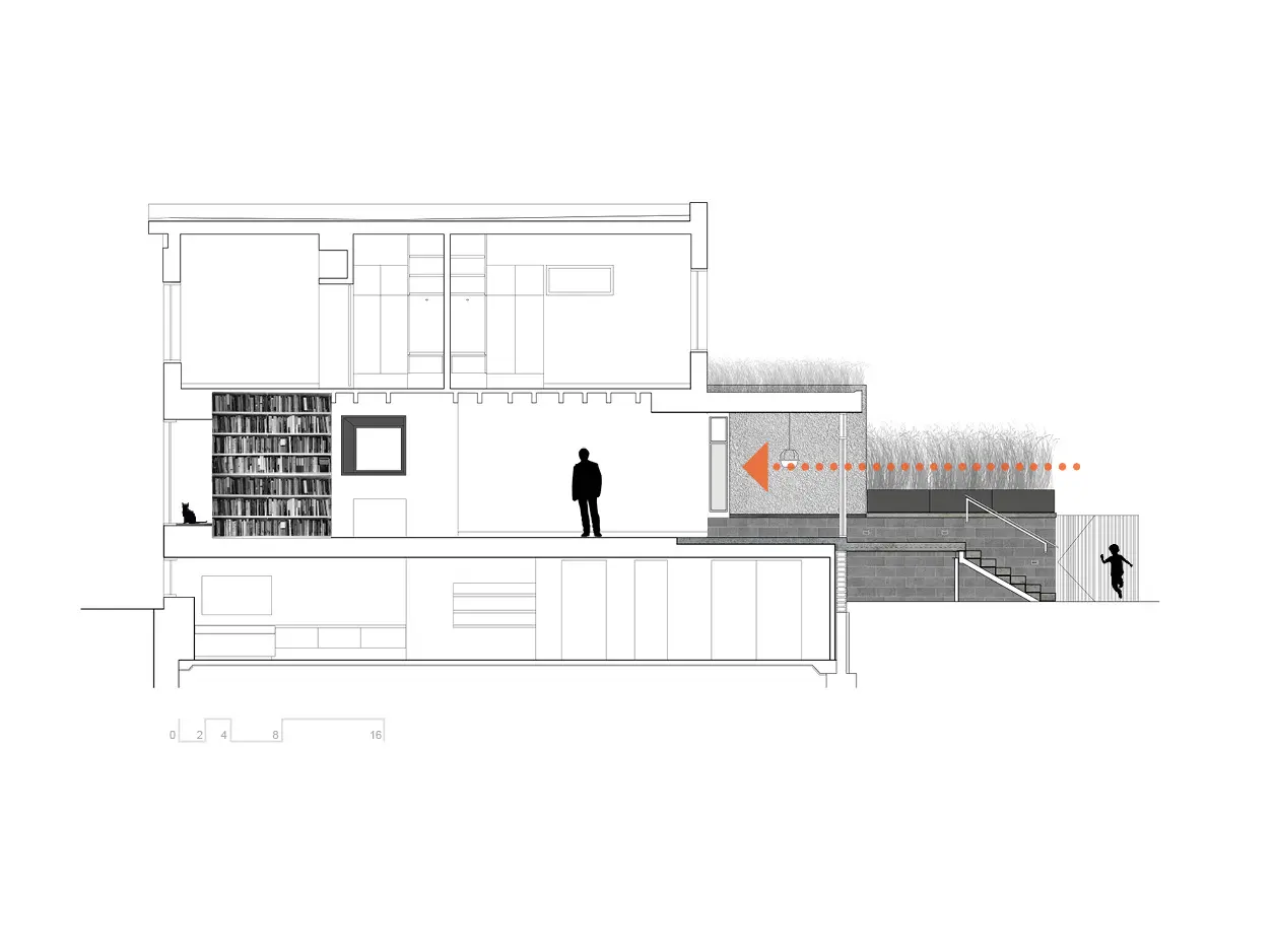
The blackened wood material palette delineates a PULL of forces that connect circulation at the urban scale (street) to circulation at the single‑family scale (stair).
The skylight PULL tugs light from above to illuminate the brick party wall. The 'Romeo and Juliet' window opens to the skylight and preserves continuity of the wall.
The kitchen is a combination of Ikea and custom‑built pieces.
Marco the cat watches birds from the dining‑room extension.
The garden is drawn into the interior through pushing the exterior material palette inside, and the new tower anchors the addition.
"Stylish Greenpoint Gut Reno Joins Modern Touches With Rustic Original Elements" — Brownstoner, The Insider, Cara Greenberg (2016)